1.2m offset dish
May 8, 2025
In March I started looking for a 1.2m fibreglass dish as it was evident that the steel dish I was using for 10GHz would not be able to handle the extra weight of the SSPA and power supply mounted at the feed point. After making a few enquiries I found a Prodelin 1132 1.2m offset dish together with a feed arm. I also decided to change the lightweight patio stand used to mount the slew drive and dish for a stronger mount.
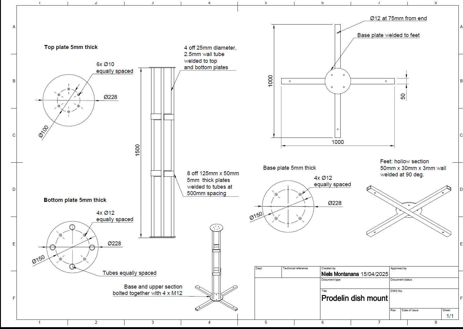
Dish mount
The mount is 1.5m high and could also be used for a 1.8m dish. Each concrete block weighs 15kg. The slew drive is mounted directly to the top and a 400mm x 400mm x 5mm aluminium plate is used for attaching the dish.
Feed arm
I set up a string test to determine where the focal point should be and found that the feed arm that came with the dish must be for a different model as it’s too short.
Calculations using HDL_ANT and responses to a post on the UKMicrowaves forum confirmed that I would need to position the feed tray around 1200mm from the dish. In order to get the feed tray positioned at the correct angle I setup some aluminium offcuts at the illumination angle.
Sun noise
After optimising the feed tray position and angle, sun noise measurement looks good. I will wait for better conditions before attempting to measure moon noise.
| Measurement | Result | VK3UM EMECalc | OZ9AAR SimpleCalc |
|---|---|---|---|
| Tsky/Tsun | 9.13dB | 9.01dB | 10.55dB |
| Tsky/Tground | 4.14dB | 3.04dB | - |
SFU @ 10 GHz = 338